Haslach, Arne-Torgersen-Straße

Zwei Winkelhäuser im Neubaugebiet Gutleutmatten (Ost)

Gartenstadt 2.0

Das Farb- und Materialkonzept nimmt direkten Bezug auf die Fassaden des Nachbarviertels„Wiehre“.
Das Farb- und Materialkonzept nimmt direkten Bezug auf die Fassaden des Nachbarviertels„Wiehre“.

Die Idee der Gartenstadt wurde mit diesen zwei Neubauten auf gelungene Weise neu interpretiert: angenehmes Wohnen in Stadtnähe für Jedermann mit attraktiven Freiräumen und sehr viel Grün.

Das Farb- und Materialkonzept nimmt direkten Bezug auf die Fassaden des Nachbarviertels „Wiehre“.
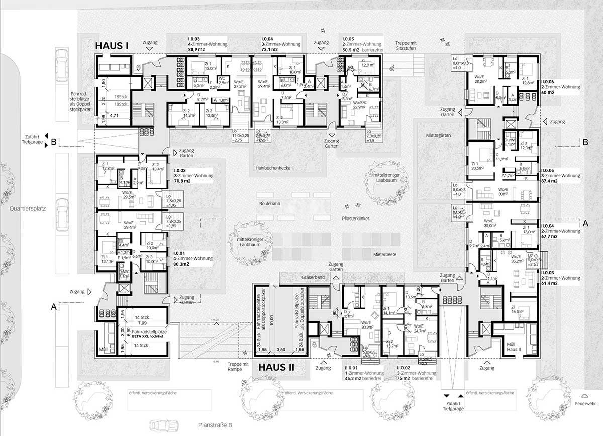
Die Winkelgebäude umschließen einen Innenhof, der frei von Einbauten geblieben ist!
Die Winkelgebäude umschließen einen Innenhof, der frei von Einbauten geblieben ist!

Als dem Gestaltungsbeirat dieser Entwurf von zwei Winkelgebäuden mit insgesamt 62 Mietund Eigentumswohnungen präsentiert wurde, hatte die Entwicklung des Baugebiets Gutleutmatten gerade erst begonnen. Fest stand jedoch bereits, dass hier, südwestlich der Freiburger Innenstadt, ein nachhaltiges Stadtquartier entstehen sollte, das die Idee der Gartenstadt neu interpretiert. Eben dieses städtebauliche Konzept fand der Beirat schon bei der Erstvorlage der beiden Häuser von H+O Architekten geradezu idealtypisch umgesetzt.

Wie im Entwurf vorgesehen, umschließen die Winkelgebäude heute in kompakter Weise einen Innenhof, der völlig frei von Einbauten geblieben ist und somit in seiner gesamten Fläche für Gestaltung und Begegnung, Spiel und Entspannung, zur Verfügung steht. Parkplätze für Autos wie für Fahrräder, Mülltonnen und Technikräume – all das wurde ins Innere der Gebäude verlegt, was zur Attraktivität des Innenhofs erheblich beiträgt und auch die klare Kubatur der Häuser bestens zur Geltung kommen lässt.

Ausschlaggebend für den überzeugenden Gesamteindruck der Häuser ist die Gestaltung der Fenster, der Fassade sowie des Sockels und der Dachabschlüsse. Das Farb- und Materialkonzept nimmt dabei in gelungener Weise Bezug auf die Fassaden des benachbarten Freiburger Viertels Wiehre.

Erstvorlage

Schnitt durch die zwei Winkelhäuser und den Innenhof, völlig frei von Einbauten.
Schnitt durch die zwei Winkelhäuser und den Innenhof, völlig frei von Einbauten.
Schnitt durch die zwei Winkelhäuser und den Innenhof, völlig frei von Einbauten.
Die Idee der Gartenstadt: Von allen Wohneinheiten blickt man ins Grüne.
Die Idee der Gartenstadt: Von allen Wohneinheiten blickt man ins Grüne.

Insgesamt zeigte sich der Beirat begeistert über die konsequente Umsetzung des städtebaulichen Ansatzes. Das zeigte sich etwa bei der Entscheidung, die Mieterwohnungen eher im urbanen Bereich, die Eigentumswohnungen hingegen auf der Seite des Hölderlebachs zu planen. Unabhängig von der Lage bietet jede der durchgesteckten Wohneinheiten mehrere Perspektiven auf das Grün in der Umgebung – auf die schon im Erstentwurf überzeugend skizzierten Freiräume in unmittelbarer Nähe wie auch auf den Schönberg vor den Toren der Stadt.

Stadtteil, Adresse Haslach, Arne-Torgersen-Straße 9–19
Bauherr_in Freiburger Stadtbau GmbH, Freiburg
Architektur H+O ARCHITEKTEN, Architekten BDA Partner GmbB
Freiraum faktorgruen, Landschaftsarchitekten bdla, Beratende Ingenieure Partnerschaftsgesellschaft mbB
Planung 2015 bis 2016
Gestaltungsbeirat Erstvorlage (21. Mai 2015)
Fertigstellung 2018

Fotos: Yohan Zerdoun Photography, Freiburg
Die verwendeten Abbildungen, Zeichnungen und Grafiken stammen von den beim jeweiligen Projekt genannten Architektur- und Planungsbüro und entsprechen dem Planungsstand der jeweiligen Sitzung im Gestaltungsbeirat.