Neubau der Feuerwehrwache (Abt. Lehen) und des Rathauses der Ortsverwaltung Lehen
Liebe Bürger_innen Lehens,
gerne möchten wir Sie über den Neubau der Feuerwehr und Ortsverwaltung Lehen informieren:
Die alte Feuerwehrwache und das alte Rathaus Lehen (ein Gebäude- siehe Bild oben) wurde im April 2024 abgerissen.
Der Neubau wird wieder von der Ortsverwaltung, als auch von der Feuerwehr genutzt werden.
Weitere Infos, Ansichten und Pläne finden Sie hier:
Zeitschiene
Die Planungen für die neue Feuerwehrwache gehen schon einige Jahre zurück. Ursprünglich war diese auf dem Gelände des neuen Baugebiets im Zinklern geplant gewesen. Ortsvorsteher Schätzle brachte dann die Idee ein, dass das bereits vorhandene Grundstück ,auf dem die Feuerwehr und Ortsverwaltung zu Hause war, sich doch auch für den Neubau (wieder zusammen mit der Ortsverwaltung) eignen würde. Somit bliebe die Feuerwehr auch in der Ortsmitte.
So begannen die Planungen für den "Neubau der Feuerwehrwache mit integrierter Ortsverwaltung". Es bedurfte vieler Gespräche um einen Rahmen für den Neubau zu schaffen.
Der Neubau, der an der Breisgauer Straße 61 gegenüber der Straße hinauf auf den Kirchberg entstehen wird, hat eine facettenreiche Vorgeschichte. Im 18. Jahrhundert als Bauernhaus errichtet, war das prägnante Gebäude seit den 1890ern Sitz der Ortsverwaltung. Das Gerätehaus daneben beherbergte seit etwa 1960 die Freiwillige Feuerwehr des Ortes. In den Jahren 1982 bis 1984 wurde das Gerätehaus größtenteils in Eigenleistung umgebaut. Dabei wurden der alte Schlauchturm demontiert, die Fahrzeughalle erweitert und der Mannschaftsraum geschaffen. Seitdem gab es keine weiteren Umbauten, und das Geräte- wie auch das Rathaus kamen merklich in die Jahre. Feuchtigkeit setzte den Mauern zu, Fußböden senkten sich allmählich ab, die Feuerwehr meldete mehr Platzbedarf an. Also beschloss der Gemeinderat vor einem Jahr den Abriss von Rathaus und Feuerwehrhaus samt anschließendem Neubau (DS G-23/133 am 11. Juli 2023) – beides unter einem Dach, um gute Synergieeffekte in der Nutzung zu erreichen.
Der Ortschaftsrat stimmte dem Beschluss für den Neubau im Juni 2023 und dem dazugehörende Bauantrag im September 2023 einstimmig zu.
Die Pläne für den Neubau sowie der Umzug wurden dabei bereits organisiert und teils immer wieder angepasst/ergänzt ect.
Daher herrschte schon in der ersten Jahreshälfte 2024 viel Trubel an dieser sonst so beschaulichen Stelle in der Breisgauer Str. 61. Im Februar zogen die Ortsverwaltung und die Feuerwehr aus, danach wurde entrümpelt, das Dach für Fledermäuse geöffnet und schließlich abgedeckt. Im April erfolgte der Abbruch der Bestandsgebäude, in denen neben der Ortsverwaltung auch zwei Fahrzeuge der Freiwilligen Feuerwehr Lehen und der Bauhof untergebracht waren.
Während der Bauzeit sind die Feuerwehr und die Ortsverwaltung an bzw. in der Bundschuhhalle untergebracht und der Bauhof am Silberhof.
Der Spatenstich für den Neubau fand am Donnerstag, 20.06.2024 statt.
Der Baubeginn wird voraussichtlich im Juli 2024 starten.
Die Fertigstellung der neuen Feuerwehrwache und Rathaus ist aktuell für den Frühsommer 2026 geplant.
Richtfest am 03.07.2025
Traditionelles Richtfest als weiterer Meilenstein beim Neubau des Feuerwehrhaus und Ortsverwaltung...
Im April 2024 wurde unser ehemaliges Rathaus- und Feuerwehrgebäude abgerissen. Im Juni 2024 folgte der Spatenstich.
Fast genau 1 Jahr später, war nun das Richtfest.
Zu diesem Anlass waren Vertreter der Stadt u.a. BM Kirchbach und Breiter, Mitarbeiter der Ortsverwaltung und des Immobilienmanagement und Kameraden der Feuerwehr sowie auch angrenzende Anwohner und die vor Ort tätigen Akteure und Handwerker eingeladen.
Aktuell laufen die letzten Außenarbeiten, dann geht es an den Innenausbau.
Ungefähr in einem Jahr soll die Feuerwehr und Ortsverwaltung wieder einziehen können. Warten wir es ab...
Spatenstich am 20.06.2024
Spatenstich für Feuerwehrhaus und Ortsverwaltung: Lehens großer Schritt in die Zukunft
In feierlichem Rahmen, vor reichlich Publikum und im Beisein gleich dreier Bürgermeister wurde der Grundstein für ein neues Gebäude mitten im Ortskern von Lehen gelegt, in dem künftig die Ortsverwaltung und die Freiwillige Feuerwehr Lehen untergebracht sein werden.
Am 20.06.2024 haben OB Martin Horn, Baubürgermeister Martin Haag, Bürgermeister Stefan Breiter und Ortsvorsteher Bernhard Schätzle den Grundstein für die geplanten vier neuen Gebäudeteile gelegt.
Dabei sagte OB Martin Horn: „Das neue Gebäude für Feuerwehr und Ortsverwaltung ist eine wichtige Investition für noch mehr Sicherheit und Service. Dass Wehr und Verwaltung in einem Gebäude untergebracht werden, ist effizient und schafft Synergieeffekte. Und der Neubau ist eine vorausschauende Verbesserung der Infrastruktur. Lehen und der Westen Freiburgs wachsen, die Freiwillige Feuerwehr wird in Zukunft den Stadtteil Dietenbach mitversorgen. Wir setzen hier auf Lehen. Für diese wichtige Aufgabe und das großartige Engagement der Freiwilligen Feuerwehr für uns in Freiburg schaffen wir jetzt das notwendige moderne Arbeitsumfeld.“
Baubürgermeister Martin Haag hob hervor: „Wir bauen hier ein topmodernes Gebäude, das den Lehenerinnen und Lehenern, den Angehörigen der Feuerwehr und nicht zu vergessen den Mitarbeitenden der Ortsverwaltung riesige Verbesserungen beschert. Zusätzlich kommt die Passivhausbauweise dem Klimaschutz zugute.Im Zuge des Neubaus gestalten wir außerdem den Vorplatz neu und erhöhen damit die Aufenthaltsqualität ein ganzes Stück.“
Bürgermeister Stefan Breiter, der neben der Feuerwehr auch für die städtischen Finanzen zuständig ist, betonte: „In einem Gebäude vereinen wir nun Effizienz und Funktionalität, um zeitgerechte, bürgernahe Dienstleistungen anbieten zu können. Der Neubau des Feuerwehrhauses stärkt die Rettungsinfrastruktur in Freiburg und macht unsere Feuerwehr fit für die Zukunft. Er ist entscheidend für die Nachwuchsgewinnung im Ehrenamt in Lehen und sichert die langfristige Einsatzbereitschaft im Freiburger Westen, der durch die neuen Baugebiete Dietenbach und Zinklern stark wächst.“
Nach dem Spatenstich beginnen demnächst die Bauarbeiten, die bis April 2026 dauern sollen. Der Bezug wird voraussichtlich im Frühsommer 2026 möglich sein.
Die Gesamtkosten für diesen Neubau liegen bei 7,9 Millionen Euro. Das Land Baden-Württemberg schießt für den Bau des Feuerwehrhauses 175.000 Euro zu und die Sonderentwicklungsmaßnahme (SEM) Dietenbach beteiligt sich mit 1,5 Millionen Euro, weil mit dem Neubau auch der neue Stadtteil Dietenbach mit abgedeckt wird.
neue Feuerwehrwache Lehen
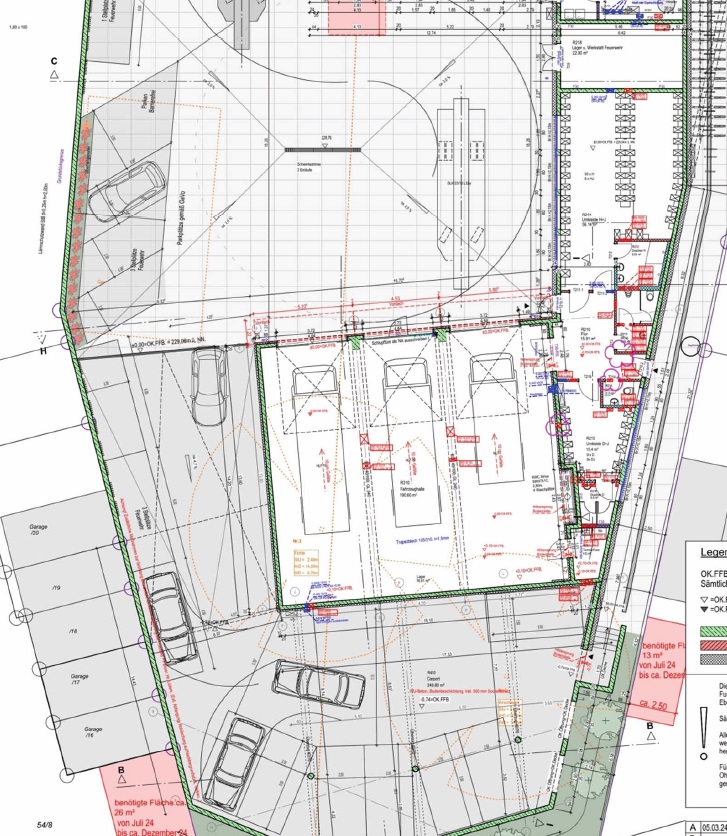
Die neue Fahrzeughalle der Feuerwehr wird Platz für drei Fahrzeuge bieten.
Im Zwischengebäude werden sich Nebennutzräume der Feuerwehr sowie gemeinschaftlich genutzte Flächen befinden. Die Parkgarage wird halb unterirdisch, halb überirdisch ausgeführt und intensiv begrünt.
neues Rathaus der Ortsverwaltung Lehen
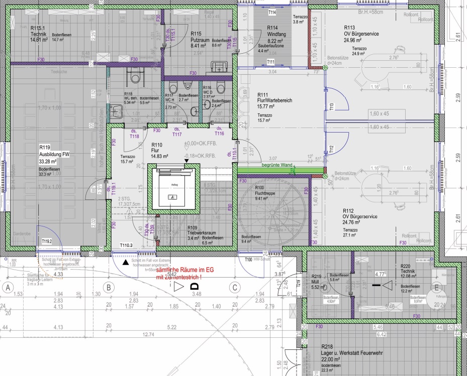
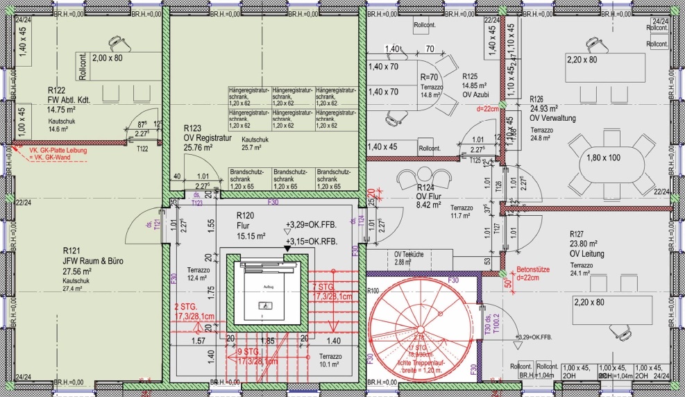
Die Ortsverwaltung Lehen musste etwas Platz abgeben, findet aber im Gebäude wieder die ähnliche Aufteilung wie davor auf 2 Etagen. Das Dachgeschoss wird zusammen mit der Feuerwehr genutzt für beispielsweise Besprechungen, Versammlungen, Sitzungen oder auch für Trauungen.
weitere Ansichten und Pläne...
Hier finden Sie weitere Infos, Pläne und Ansichten vom Gesamtenbauprojekt:
An der Breisgauer Straße wird ein dreigeschossiges Gebäude mit Satteldach errichtet, das in der Fassadengestaltung, Dachform und Materialität die Gebäude-Typologie Lehens aufnimmt. Im Dachgeschoss wird es einen großen Multifunktionsraum geben, der der Ortsverwaltung und der Feuerwehr für Veranstaltungen zur Verfügung steht.
Entlang der östlichen Grundstücksgrenze wird ein eingeschossiger Flachbau (Verbindungsbau) errichtet, der den notwendigen Schallschutz zu den östlichen Nachbarn gewährleistet. Darin befinden sich Technikräume, Lagerflächen und die Umkleideräume der Feuerwehr. Von dort gelangt man in das rückwärtig gelegene dreistöckige Feuerwehrgerätehaus.
Im südlichen Teil des Grundstücks wird für die privaten Pkw der Feuerwehr eine geschlossene Parkgarage errichtet, die insbesondere nachts den Schallschutz zu den südlichen Nachbarn sicherstellt. Wegen des hohen Grundwasserspiegels vor Ort wird sie nur halb ins Erdreich eingelassen und als weiße Wanne ausgeführt. Längs der westlichen Grenze wird zudem eine 2,50 m hohe Schallschutzwand errichtet.
Da sich das Grundstück im Hochwassergefahrenbereich befindet, werden die Gebäude so hoch wie möglich gesetzt. Der ebenerdige und barrierefreie Zugang zur Ortsverwaltung bleibt gewährleistet. Das Erdgeschoss der Ortsverwaltung, der Verbindungsbau und die Fahrzeughalle werden in Stahlbeton ausgeführt und mit Materialien und Komponenten verbaut, die drückendes Wasser aushalten. Die oberen Geschosse der Ortsverwaltung werden in Holz-Hybridbauweise errichtet. Das Gebäude der Ortsverwaltung erhält einen Aufzug, der alle Geschosse barrierefrei erschließt.
Das Gebäude der Ortsverwaltung wird in Passivhausweise errichtet. Bei Verbindungsbau und Feuerwehrgerätehaus kommen wegen der temporären Nutzung und der geringeren Beheizung Passivhaus-Komponenten zum Einsatz; der laut Passivhaus-Standard maximale jährliche Heizwärmebedarf von 15 kWh/(m2a) wird eingehalten. Die Wärmeversorgung erfolgt über eine Grundwasserwärmepumpe mittels Förder- und Schluckbrunnen. Auf den Dächern ist eine Photovoltaikanlage mit einer Gesamtleistung von bis zu 35 kWp geplant. Das Flachdach der Parkgarage wird intensiv begrünt, was den Nachbarn den „Blick ins Grüne“ sichert. Teile der westlichen Schallschutzmauer werden zur Hofseite begrünt.
Auch der Vorplatz vor dem schmucken Ortsverwaltungsgebäude wird umgestaltet, um seine Aufenthaltsqualität zu erhöhen. Der historische Sandsteinbrunnen unter der Kastanie wird saniert, leicht versetzt und durch Sitzmöbel ergänzt. Die heutigen Bushaltestellen werden barrierefrei umgebaut und in Absprache mit der Freiburger Verkehrs AG und der Ortsverwaltung verlegt, um eine bessere Gestaltung des Vorplatzes zu ermöglichen.


















