Altstadt, Herrenstraße 33

Wiederaufbau des Andlauhauses

Solitär erinnert an 250 Jahre Stadtgeschichte

Mit dem Neubau des Andlauhauses ist eine der letzten Baulücken in der Innenstadt geschlossen.
Mit dem Neubau des Andlauhauses ist eine der letzten Baulücken in der Innenstadt geschlossen.

Der im 18. Jahrhundert erbaute Gebäudekomplex „Andlauhaus“ nördlich des Münsters war im Zweiten Weltkrieg vollständig zerstört worden und hatte jahrzehntelang eine klaffende Baulücke in der Innenstadt hinterlassen. 2013 wurde schließlich ein erfolgversprechendes Nutzungskonzept vorgelegt: Entstehen sollte hier mit dem „Münsterforum“ ein Begegnungs- und Lernort sowie ein inklusives Café.

Der Haupteingang zur Herrenstraße.
Die Sichtachse vom Münsterplatz in Richtung Münsterforum.
Neubau

Die interessanten Rekonstruktions- und Nutzungspläne für das Andlauhaus wurden dem Gestaltungsbeirat zur Begutachtung vorgelegt. Dieser legte besonderes Augenmerk auf der Neupositionierung des Baukörpers. Zentral war die Frage, ob die historische Gassenbreite von 3,5 Meter an der Nordseite des Grundstückes wieder aufgenommen werden sollte. Gegen Letzteres sprachen jedoch die Rahmenbedingungen: So ist z. B. für Fahrzeuge der Feuerwehr eine mindestens fünf Meter breite Gasse erforderlich. Auch eine exakte Rekonstruktion der südlichen Bauflucht sei nicht erstrebenswert, weil dies zwei großkronige Kastanien im Konviktskirchhof gefährde. Empfehlenswert sei stattdessen eine behutsame Neupositionierung des Baukörpers auf dem historischen Grundriss, die interessante Freiräume ermögliche und die Schließung des Straßenraums gewährleiste.

Darüber hinaus regte der Gestaltungsbeirat an, den östlich gelegenen Freiraum wieder als Garten zu gestalten, um auch bei der Außenbewirtung dem Anspruch der Inklusion möglichst gut gerecht zu werden. Dies würde allerdings ein Überdenken von Grundriss und Gebäudefigur sowie eine Verlegung des Haupteingangs an die Straßenseite erforderlich machen. Dessen Rückkehr an seine ursprüngliche Position wäre auch im Hinblick auf die Sichtachse vom Münsterplatz Richtung Münsterforum bedeutsam.

Erstvorlage

Lageplan des Neubaus; deutlich markiert: die beiden Kastanienbäume im Konviktskirchhof
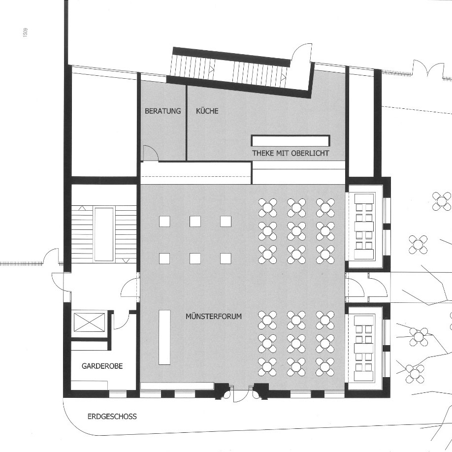
Grundriss Erdgeschoss
Querschnitt des zweigeschossigen Gebäudes in der Nordansicht.
Neubau
Westansicht des Andlauhauses samt Konviktskirche und Nachbarbebauung.
Westansicht des Andlauhauses samt Konviktskirche und Nachbarbebauung.

Zudem gab man zu bedenken, dass das geplante Gebäude bewusst den Charakter eines Solitärs habe, weshalb allen Gebäudeseiten wichtige Aufgaben zukämen. Der zweigeschossige östliche Gebäudeteil schwäche jedoch das Erscheinungsbild erheblich. Wünschenswert sei es, dass sich die Kraft des Gebäudes aus einer einfachen geometrischen Gesamtfigur heraus entfalte. Auch sei eine größere Gebäudetiefe aus Sicht des Gestaltungsbeirats durchaus möglich.

Stadtteil, Adresse Altstadt, Herrenstraße 33
Bauherr_in Erzdiözese Freiburg vertreten durch das Erzbischöfliche Ordinariat, Freiburg
Architektur Erzbischöfliches Bauamt, Freiburg und m² architekturbüro, Freiburg (Lph 5-9)
Planung 2015 – 2020
Gestaltungsbeirat Erstvorlage (12. Mai 2016)
Fertigstellung Mai 2020

Fotos: Yohan Zerdoun Photography, Freiburg